Roses Alt Empordà, Girona
1
1
48 m2
Vous imaginez vivre ici ?
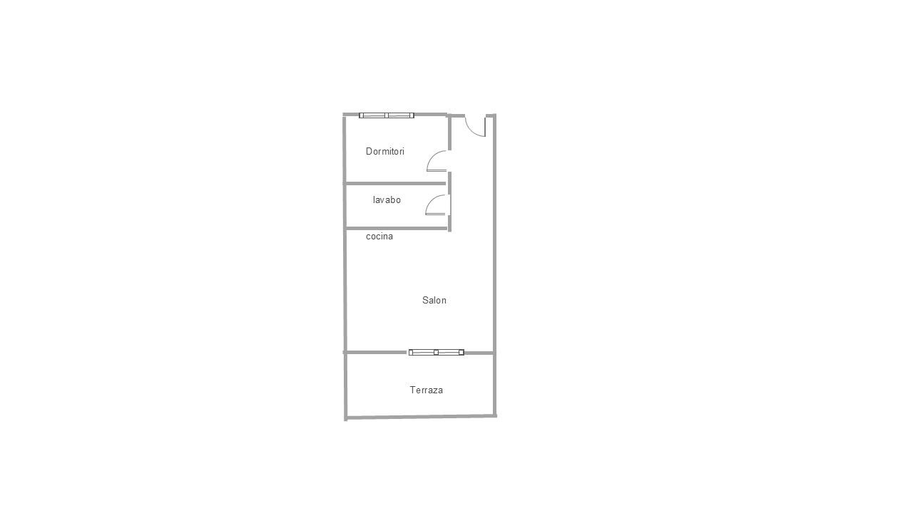
Il se compose d’une chambre confortable, d’une salle d’eau contemporaine, et d’un séjour lumineux agrémenté d’une cuisine ouverte entièrement équipée. L’espace de vie s’ouvre sur une agréable terrasse orientée sud-ouest, parfaite pour profiter du soleil catalan et admirer la vue sur la piscine.
L’appartement bénéficie d’un parking extérieur privé, d’un accès à une piscine communautaire au sein d’une résidence bien entretenue, et d’une licence touristique — un véritable atout pour un investissement locatif saisonnier.
Un bien idéal comme pied-à-terre à Roses, combinant confort, tranquillité et rentabilité, à seulement quelques minutes du centre-ville et des plages.
Un bien rare, à visiter rapidement !
Caractéristiques du bien
| Surface : | 48 m2 |
|---|---|
| Type: | Appartement |
| Transaction: | Vente |
| Type de construction: | Occasion |
| État: | Bon état |
| Chambres: | 1 |
| Salles de bains: | 1 |
| Meublé: | Oui |
| Parking: | Oui |
| Terrasse: | 6 m2 |
| Climatisation: | Oui |
| Séjours: | 1 |
| Licence touristique: | Oui |
| Orientation: | Sud |
| Certification énergétique: | G - 330 kWh/m2 F - 56 kg CO2/m2 |




































