Roses Alt Empordà, Girona
1
1
48 m2
T’imagines vivint aquí?
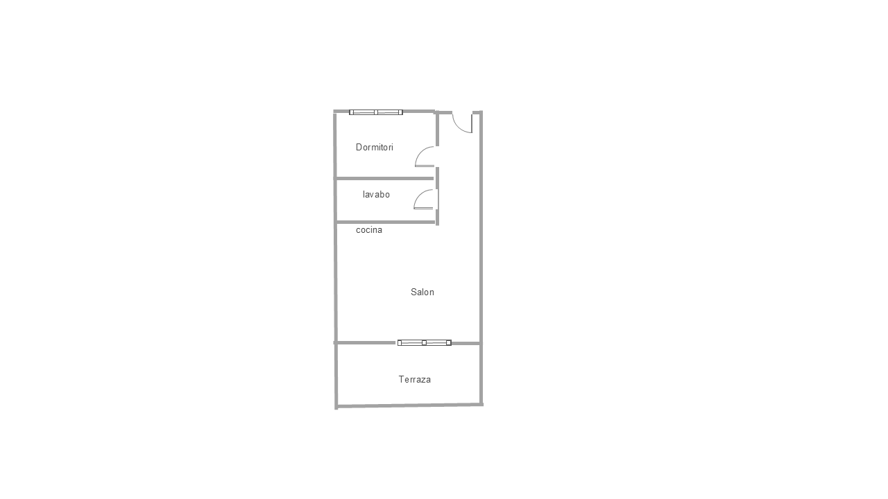
Es composa d'una habitació còmoda, d'un lavabo contemporani, i d'una sala d'estar lluminosa adornada amb una cuina oberta totalment equipada. L'espai de vida s'obre a una agradable terrassa orientada a sud-oest, perfecta per gaudir del sol català i admirar les vistes sobre la piscina.
L'apartament gaudeix d'un aparcament exterior privat, d'un accés a una piscina comunitària dins d'una residència ben mantinguda, i d'una llicència turística — un veritable actiu per a una inversió de lloguer estacional.
Un immoble ideal com a peu a terra a Roses, combinant confort, tranquil·litat i rendibilitat, a només uns minuts del centre i de les platges.
Un immoble rar, per visitar ràpidament!
Característiques de la propietat
| Superfície: | 48 m2 |
|---|---|
| Tipus: | Pis |
| Operació: | Venda |
| Tipus d'obra: | 2ª mà |
| Estat: | Bon estat |
| Habitacions: | 1 |
| Banys: | 1 |
| Moblat: | Sí |
| Pàrquing: | Sí |
| Terrassa: | 6 m2 |
| Aire condicionat: | Sí |
| Sales: | 1 |
| Llicència turística: | Sí |
| Orientació: | Sud |
| Eficiència energètica: | G - 330 kWh/m2 F - 56 kg CO2/m2 |




































