Empuriabrava Alt Empordà, Girona
1
46 m2
Vous imaginez vivre ici ?
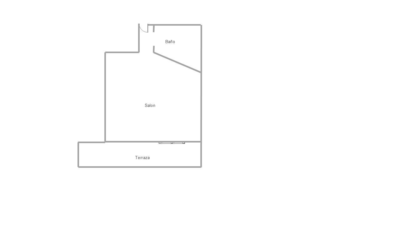
Il se compose d’un séjour spacieux faisant office de salon et salle à manger, d’une salle de bain, ainsi que d’une agréable terrasse de 7 m² offrant une jolie vue sur la mer — idéale pour vos moments de détente au soleil.
Grâce à son emplacement privilégié au cœur d’Empuriabrava, à proximité immédiate des commerces et des restaurants, ce bien offre un fort potentiel après rénovation.
Une opportunité idéale pour un pied-à-terre en bord de mer, dans l’une des stations balnéaires les plus prisées de la Costa Brava.
Caractéristiques du bien
| Surface : | 46 m2 |
|---|---|
| Type: | Appartement |
| Transaction: | Vente |
| Surface utile: | 35 m2 |
| Type de construction: | Occasion |
| État: | Bon état |
| Salles de bains: | 1 |
| Terrasse: | 7 m2 |
| Séjours: | 1 |
| Certification énergétique: | F - 192 kWh/m2 F - 36 kg CO2/m2 |





















