Empuriabrava Alt Empordà, Girona
3
2
85 m2
T’imagines vivint aquí?
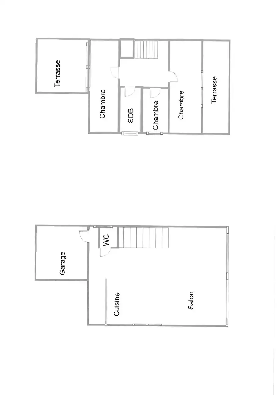
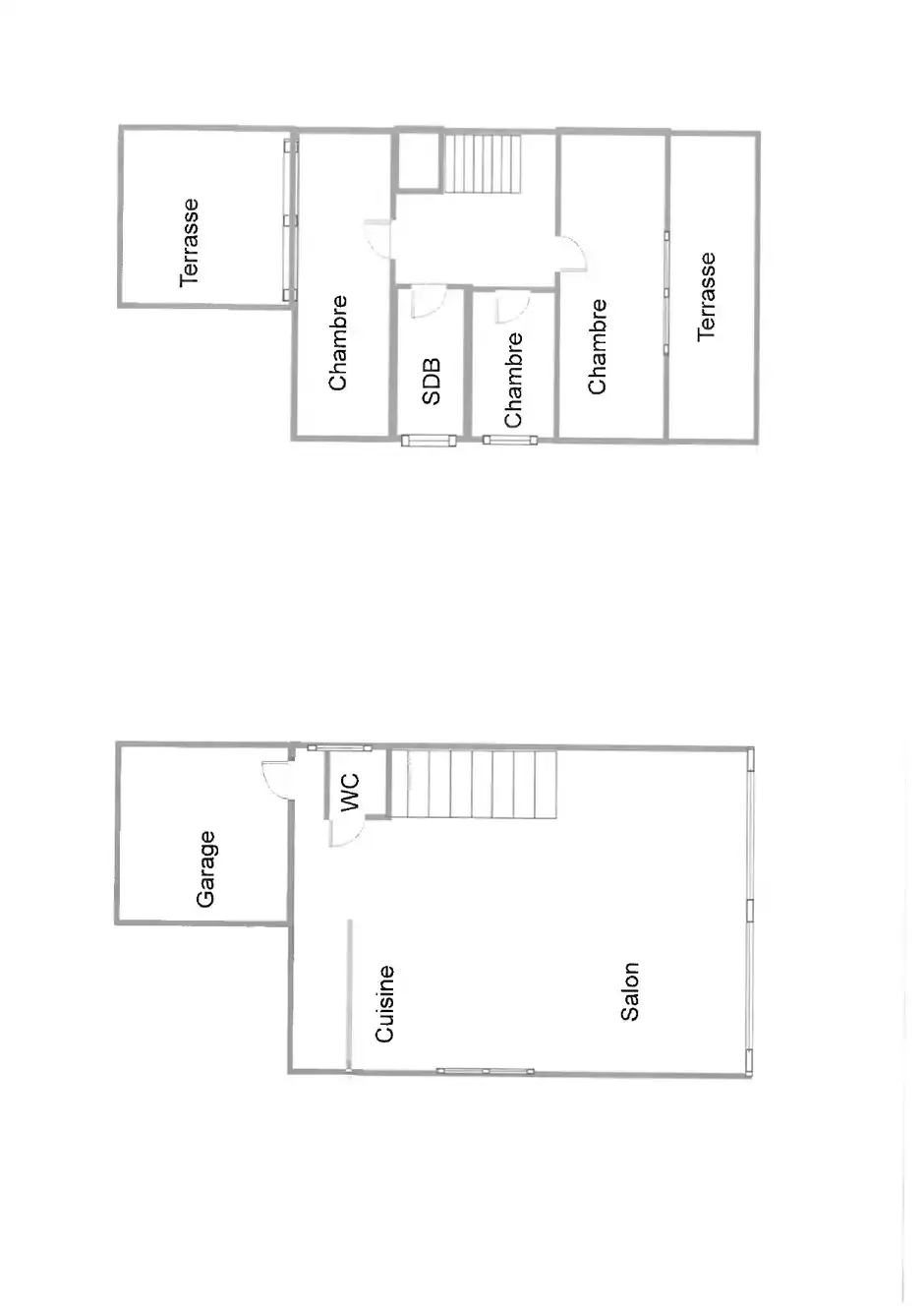
A la planta baixa, la casa proposa una àmplia sala d'estar contemporània que inclou una cuina americana amb illa central, un espai de menjador i un saló lluminós. Les grans finestres creen una bonica continuïtat amb l'exterior, donant accés a la terrassa, a la piscina i al canal. Un lavabo independent completa aquest nivell.
A la planta superior, l'espai nocturn es compon de tres habitacions, una de les quals disposa d'una terrassa amb vista des de la canal i una altra que compta amb una terrassa amb vista sobre les muntanyes. Un bany amb dutxa a l'italiana que integra els WC completa aquesta planta.
A l'exterior, els espais han estat dissenyats per gaudir al màxim del clima mediterrani: piscina al costat del canal, terrassa acollidora i solàrium amb vistes espectaculars sobre els Pirineus. Un garatge completa les prestacions d'aquesta propietat.
Totalment renovada amb materials de qualitat, la casa disposa de climatització reversible, bon aïllament i acabats decoratius moderns que aporten confort i elegància.
Dotada d'una llicència turística en vigor, aquesta casa representa una oportunitat rara a Empuriabrava, combinant una ubicació premium, prestacions completes i un estil de vida nàutic.
El preu indicat no inclou impostos ni despeses derivades de la compravenda (ITP o IVA, notaria, registre de la propietat i gestoria).
Els honoraris d'intermediació immobiliària estan inclosos en el preu.
L'immoble es ven en el seu estat actual.
La informació exposada és orientativa i pot estar subjecta a errors o omissions involuntàries.
Característiques de la propietat
| Terreny: | 320 m2 |
|---|---|
| Operació: | Venda |
| Tipus d'obra: | 2ª mà |
| Estat: | Restaurat |
| Lavabos: | 1 |
| Terrassa: | Sí |
| Aire condicionat: | Sí |
| Sales: | 1 |
| Amarre: | Sí |
| Orientació: | Sudest |
| Llicència turística: | Sí |








































